Een harmonie van warmte en weerstand
Hout-aluminium ramen sterk in de lift

Hout-aluminium ramen combineren een houten binnenzijde met een aluminium buitenschaal. Ze worden gekozen vanwege hun warme uitstraling aan de binnenkant en hun robuuste, onderhoudsarme karakter aan de buitenzijde. Deze combinatie maakt het mogelijk om het esthetische en natuurlijke van hout te behouden, zonder in te boeten aan duurzaamheid of weersbestendigheid. Hout-aluminium profielen zijn beschikbaar in verschillende uitvoeringen en passen zowel in nieuwbouw als renovatieprojecten.

Overwegend hout
De klassieke opbouw van hout-aluminiumramen bestaat hoofdzakelijk uit een houten raamkozijn aan de binnenzijde, afgewerkt met een aluminium buitenschil. De verhouding tussen beide materialen kan variëren, maar doorgaans is het aandeel hout veel groter, zo'n 90%.
Er bestaan twee types profielen: geventileerde en ongeventileerde. Bij de geventileerde profielen zorgt een luchtlaag tussen beide materialen voor de nodige ventilatie, wat zorgt voor luchtcirculatie en voorkomt dat condensatie aan de achterzijde van het aluminium vocht veroorzaakt dat het hout zou kunnen aantasten. Met andere woorden: er is steeds ventilatie mogelijk en het profiel kan steeds uitdrogen.
Ongeventileerde systemen, waarbij aluminium direct in contact staat met het hout, lopen een hoger risico op vochtophoping en dus op houtrot.
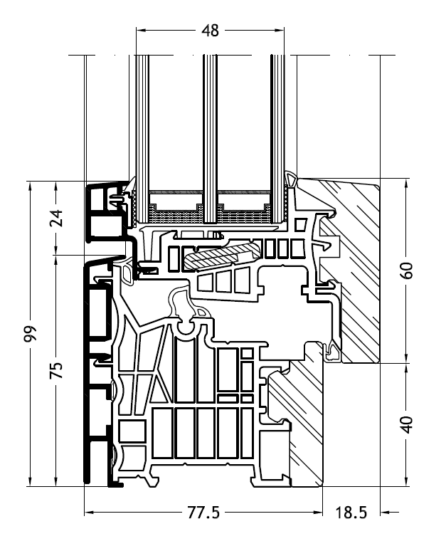
Ramen maken gebruik van draaibare clips zodat aluminium vrij kan uitzetten bij temperatuurschommelingen
In de praktijk wordt vaak gekozen voor een mengvorm van beide types waarbij het aluminium een bepaald percentage van het hout bedekt. Langs de onbedekte zones kan het hout dan ‘ademen’ en kan de eventuele inwendige condensatie uitdrogen. Het bedekkingspercentage is hierin bepalend voor het risico op houtrot: doordat de aluminiumlaag erg gesloten is, kan het opgestapelde vocht niet drogen. Indien er een te grote oppervlakte van het profiel afgesloten is door de aluminium laag, kan dit vocht niet tijdig uitdrogen. Het zal zich vervolgens opstapelen en uiteindelijk zal het profiel rotten.
Kunststof als extra element
Een verdere evolutie in de opbouw van hout-aluminium raamprofielen is het gebruik van kunststof als dragend element. Daarbij wordt een dunne binnenafwerking in hout gecombineerd met een aluminium schaal aan de buitenzijde. De kunststofkern - vaak vervaardigd uit gerecycleerd materiaal - fungeert als isolerend middendeel en garandeert een stabiele structuur. Alle materialen kunnen bij einde van de levensduur van elkaar gescheiden en gerecycleerd worden.
Bevestiging met clips
Het aluminium wordt doorgaans op het hout bevestigd via een clipsysteem. Daarbij wordt een kunststof of metalen clipstructuur in het hout geschroefd, waarna het aluminiumprofiel erop geklikt wordt. Ramen maken gebruik van draaibare clips zodat aluminium vrij kan uitzetten bij temperatuur-schommelingen. Dankzij die draaibare clips kan de beglazing vervangen worden zonder silicone.
Voor kozijnen, die niet reageren op warmte, worden vaste clips gebruikt. Om waterinfiltratie te vermijden, worden de hoeken voorzien van een neopreen afdichtingsrubber. Dit systeem garandeert een duurzame verbinding en een correcte werking van beide materialen, ook bij uiteenlopende klimaatomstandigheden.

Welke houtsoorten?
De houtsoort bepaalt in belangrijke mate het uitzicht en de sfeer van het interieur. Daarom wordt er voornamelijk gekozen voor edele houtsoorten waarvan de nerf een warme uitstraling heeft.
- Eik, met een duurzaamheidsklasse II, staat bekend om zijn duurzaamheid en warme uitstraling.
- Eucalyptus is een snelgroeiende plantagehoutsoort en isoleert beter dan andere houtsoorten, zoals mahonie. Deze duurzame houtsoort is bovendien volledig FSC-gecertificeerd.
- Grenen is dan weer een lichtere en matig duurzame keuze, maar scoort goed op vlak van isolatie.
- Vurenhout wordt vaak toegepast vanwege zijn lichte gewicht, goede isolerende eigenschappen en gunstige prijs.
- Lariks, ten slotte, is het meest duurzame Europese naaldhout, biedt dankzij zijn lage lambda-waarde een uitstekende thermische prestatie in combinatie met aluminium.
Hardhoutsoorten met een minder fraai nerfbeeld, zoals meranti, afromozia en afzelia, worden zelden voor deze toepassingen gekozen omdat ze de esthetiek en thermische prestaties nadelig beïnvloeden.
Hardhoutsoorten met een minder fraai nerfbeeld worden zelden voor deze toepassingen gekozen
Voordelen van het systeem
De combinatie van hout en aluminium biedt tal van voordelen. Binnenin zorgt het hout voor een warme en natuurlijke uitstraling, is het gemakkelijk te bewerken en biedt het een goede akoestische en thermische isolatie.
Aluminium aan de buitenzijde biedt bescherming tegen weer en wind, vraagt weinig tot geen onderhoud, roest niet, en beschermt het onderliggende hout optimaal. Zo hoeft de buitenzijde niet geverfd of behandeld te worden, terwijl de binnenzijde desgewenst kan worden afgewerkt met lak of olie.
In kustgebieden biedt lakwerk volgens Qualicoat Seaside-normen een hogere weerstand tegen corrosie
Een klein nadeel is dat olie soms kan leiden tot verkleuringen op langere termijn. Ook zijn er enkele bijzonderheden die extra aandacht vereisen. Denk aan specifieke assemblages zoals dwarsbalken, vaste enkelvoudige kozijnen en andere schuiframen. Extra water- en luchtbarrières zijn hier een must.
Aandachtspunten bij de installatie
De plaatsing van hout-aluminium ramen vraagt meer technische kennis en nauwkeurigheid dan bij traditionele PVC- of aluminiumramen. Installateurs moeten vertrouwd zijn met het systeem en beschikken over voldoende technische documentatie. Voor de installatie moet het schrijnwerk beschermd worden tegen direct zonlicht en UV-straling, zeker wanneer de binnenzijde behandeld is met olie of beits. Beschadigingen, hoe klein ook, moeten hersteld worden omdat ze anders de dampdichtheid van het raam kunnen aantasten.

Wat zegt de norm?
Er bestaat geen aparte norm die uitsluitend betrekking heeft op hout-aluminium ramen. Ze vallen wel onder de Belgische norm NBN EN 13420, die de degradatie van raamprofielen evalueert. Deze biedt een proefmethode die het toelaat de degradatie bij een normale vochtbelasting te evalueren voor samengestelde raamprofielen.
De norm blijft echter heel vaag. Ze is bedoeld als test om types van raamprofielen bij hun ontwerp met elkaar te vergelijken (intial type testing), en niet voor de kwaliteitscontrole of de evaluatie van profielen die hun degelijkheid al in de praktijk bewezen hebben. De norm biedt geen beoordelingscriterium en geeft niet aan welke vochtgehaltes al dan niet toelaatbaar zijn. Daarnaast vereist de proef ook erg lange proefperiodes, waardoor ze weinig praktisch nut heeft.
Daarnaast gelden algemene normen voor luchtdoorlatendheid (EN 12207), slagregendichtheid (EN 12208) en windbelasting (EN 12210). Deze worden vaak aangevuld met ISO-certificeringen voor productie- en kwaliteitsbeheer. Voor lakwerk op aluminium wordt bij sommige producenten gewerkt met Qualicoat Seaside-normen, die extra bescherming garanderen tegen corrosie in zoute of agressieve omgevingen, zoals gebouwen aan de kust.
Isolatie en technische prestaties
Hout-aluminium ramen staan bekend om een goede isolatiewaarde. Die prestaties worden hoofdzakelijk bepaald door het type beglazing, het soort hout en de dikte van de raamprofielen. Meestal geldt: hoe dikker, hoe beter de isolatiewaarde.
Naast thermische isolatie bieden hout-aluminium ramen ook goede prestaties op vlak van akoestiek
Om te weten hoe goed een raamprofiel isoleert, moeten we kijken naar de Uf-waarde die weergeeft hoeveel warmte er verloren gaat via het raamprofiel. Houtprofielen hebben doorgaans een Uf-waarde tussen 0,8 en 0,63 W/m2K. In combinatie met een hoogrendementsglas of driedubbele beglazing kunnen complete raamconstructies een totale Uw-waarde halen tot 0,8 W/m2K voor een raam van 1280 x 1490 mm. Het aluminiumprofiel, dat vooral als buitenafwerking dient, heeft hier nauwelijks invloed op, maar speelt wel een belangrijke rol in de bescherming van het profiel tegen weersinvloeden.

Naast thermische isolatie bieden hout-aluminium ramen ook goede prestaties op vlak van akoestiek, vergelijkbaar met de prestaties van andere materialen. Dankzij meerlagige opbouw en het gebruik van meerdere dichtingen kunnen ze storende buitengeluiden doeltreffend dempen, zeker in combinatie met gelaagd of akoestisch glas.
De effectieve isolatieprestaties hangen bovendien sterk af van de montage. Koudebruggen rond het raam, slechte aansluiting op de bouwschil of gebrekkige luchtdichtheid kunnen zelfs bij hoogwaardige profielen leiden tot prestatieverlies.
Condensatie, houtrot en schimmelvorming

Bij samengestelde raamprofielen met hout en aluminium is condensatie de belangrijkste risicofactor voor schade. Wanneer warme, vochtige binnenlucht in contact komt met een koud oppervlak binnen het profiel — bijvoorbeeld op de overgang tussen hout en aluminium — kan er waterdamp neerslaan in de vorm van condens, denk maar aan de condens op de spiegel na een douchebeurt.
Condensatie kan natuurlijk alleen optreden als er daadwerkelijk ook vocht is om te laten neerslaan. Voor samengestelde raamprofielen zijn er twee primaire vochtbronnen: het interne vochtgehalte en het vochtgehalte van het binnenklimaat. De meeste materialen, ook hout, bevatten poriën waarin er zich waterdamp bevindt. Dit interne vocht wordt het 'evenwichtsvochtgehalte' genoemd, wat betekent dat het vochtgehalte in het materiaal in evenwicht is met het vochtgehalte van de omgeving. Bij stijgende vochtigheid van de lucht binnen, neemt het hout extra waterdamp op en vormt het opnieuw een evenwicht. Door temperatuurverschillen over het profiel ontstaat er een intern diffusieproces, waarbij vocht zich van warm naar koud verplaatst en aan de koudere buitenzijde kan condenseren. Wanneer die condens niet snel genoeg uitdroogt — bijvoorbeeld doordat aluminium dit belemmert — ontstaat het risico op schade.
Veel eindklanten ontdekken pas tijdens het keuzeproces dat een combinatie van hout en aluminium technisch mogelijk is
Bij traditionele houten raamprofielen is deze verplaatsing van waterdamp geen probleem: aan de buitenzijde is droging steeds mogelijk, waardoor er geen accumulatie kan plaatsvinden. Als er nu een erg dichte afwerkingslaag aanwezig is op het raamprofiel, zoals een aluminium profielelement, dan kan deze droging sterk gehinderd worden. Aluminium is namelijk erg gesloten, laat geen waterdamp door en is bovendien een goede geleider. Daardoor ontstaat er aan het raakvlak van het aluminium met het hout een zone waar aan alle eisen voor condensatie is voldaan: er is veel vocht aanwezig in de vorm van waterdamp, het kan niet uitdrogen omdat het aluminium erg dicht is, en het is er koud genoeg om de relatieve vochtigheid in de richting van 100% te krijgen.
Niet elke vorm van condensatie leidt echter meteen tot problemen. Korte periodes van vocht zijn op zich onschadelijk, zolang het profiel de kans krijgt om te drogen. In het algemeen valt de aantasting van hout in twee fases te onderscheiden: een eerste fase waarin er enkel esthetische schade door schimmels ontstaat, en een tweede fase waarin er structurele schade door houtrot ontstaat. Deze twee fases onderscheiden zich door het vereiste vochtgehalte en de minimale vereiste temperatuur. Zo zullen er al schimmels kunnen optreden vanaf een vochtgehalte van 20 M% (massaprocent) en 5 °C, maar de houtrot zal zich pas ontwikkelen vanaf 25 M% en 10 °C. Door de temperatuureis is het dus ook perfect mogelijk dat er zich geen schimmel of houtrot zal ontwikkelen, ook al treedt er condensatie op.

Marktsituatie
In de lift
De markt voor hout-aluminium ramen is de afgelopen jaren in stijgende lijn geëvolueerd. Vooral in België blijkt de voorkeur voor natuurlijke materialen een belangrijke drijfveer. Veel eindklanten ontdekken pas tijdens het keuzeproces dat een combinatie van hout en aluminium technisch mogelijk is. Showroomervaringen spelen hierbij een grote rol. De mogelijkheid om de binnenzijde van een raam met hout af te werken - bijvoorbeeld passend bij parket, wandbekleding of meubels - leidt vaak tot een omschakeling van aanvankelijk geplande aluminium of PVC-oplossingen naar een hybride profiel. Daarnaast is er ook een ruime keuze aan houtsoorten, kleuren en vormgeving.
Nieuwbouw vs. renovatie
Hout-aluminium ramen zijn geschikt voor zowel nieuwbouw als renovatie, al verschillen de aandachtspunten per context. Bij nieuwbouwprojecten is het de taak van de architect om toe te zien of alles correct geplaatst is. De gevelbekleding moet vóór de plaatsing van de ramen worden voorzien. Daarnaast moet er bijzondere aandacht worden besteed aan de vochtigheid in het gebouw tijdens de droogfase van de dekvloeren en het pleisterwerk. De vochtigheid kan namelijk leiden tot aanzienlijke vervormingen van het hout. Kijk daarbij naar een maximale vochtigheidsgraad van 70%.
Bij renovatieprojecten speelt de bestaande bouwschil een grotere rol. Elementen zoals spouwisolatie, koudebruggen en aansluitdetails moeten grondig geëvalueerd worden. Indien nodig moeten bijkomende maatregelen worden genomen, zoals het verbeteren van spouwisolatie of het vermijden van rechtstreeks contact tussen bouwmaterialen die koude kunnen geleiden.


De kostprijs
Hoe de kostprijs van hout-aluminiumramen zich verhoudt ten opzichte van andere profielen, hangt af van verschillende factoren. De prijzen van hout-aluminiumramen en volaluminium ramen liggen dicht bij elkaar, vooral wanneer gebruik wordt gemaakt van standaardhoutsoorten zoals vuren. De prijs stijgt wel naargelang de gekozen houtsoort. De Europese eik bijvoorbeeld is merkbaar duurder dan naaldhout. Maar de hogere aankoopprijs wordt ruimschoots gecompenseerd door de lange levensduur en het beperkte onderhoud.
Daarnaast hangt de prijs ook af van welke soort raam de eindklant wil: vaste ramen, opendraaiende ramen of schuiframen. Net zoals bij andere ramen kan er ook gekozen worden tussen twee- of driedubbele beglazing.
Aluminium vergt weinig onderhoud en heeft een lange levensduur, wat belangrijke troeven zijn voor de duurzaamheid

Duurzaamheid en circulariteit
Vanuit ecologisch oogpunt zijn hout-aluminium ramen een verantwoorde keuze. Het hout dat gebruikt wordt is vaak FSC- of PEFC-gecertificeerd, afkomstig uit duurzaam beheerde bossen. Hout is bovendien een hernieuwbaar materiaal dat CO2 opslaat. Aluminium is voor een groot deel recycleerbaar en wordt bij voorkeur geproduceerd uit koolstofarm materiaal. Bovendien vergt aluminium weinig onderhoud en beschikt het over een lange levensduur, wat belangrijke troeven zijn voor de duurzaamheid. Doordat beide materialen aan het einde van de levensduur eenvoudig van elkaar gescheiden kunnen worden, dragen deze ramen bij aan een circulaire economie.
Wel bestaat er momenteel nog geen ontmantelingslijn specifiek voor buitenschrijnwerk, waardoor het recyclageproces afhankelijk is van manuele demontage. Volgens sommige fabrikanten ligt de CO2-uitstoot van hout-aluminium gelijk aan die van PVC-systemen, terwijl puur houten ramen nog iets duurzamer blijven.
Met medewerking van Finstral en Pierret